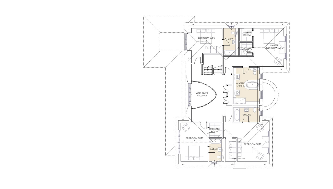
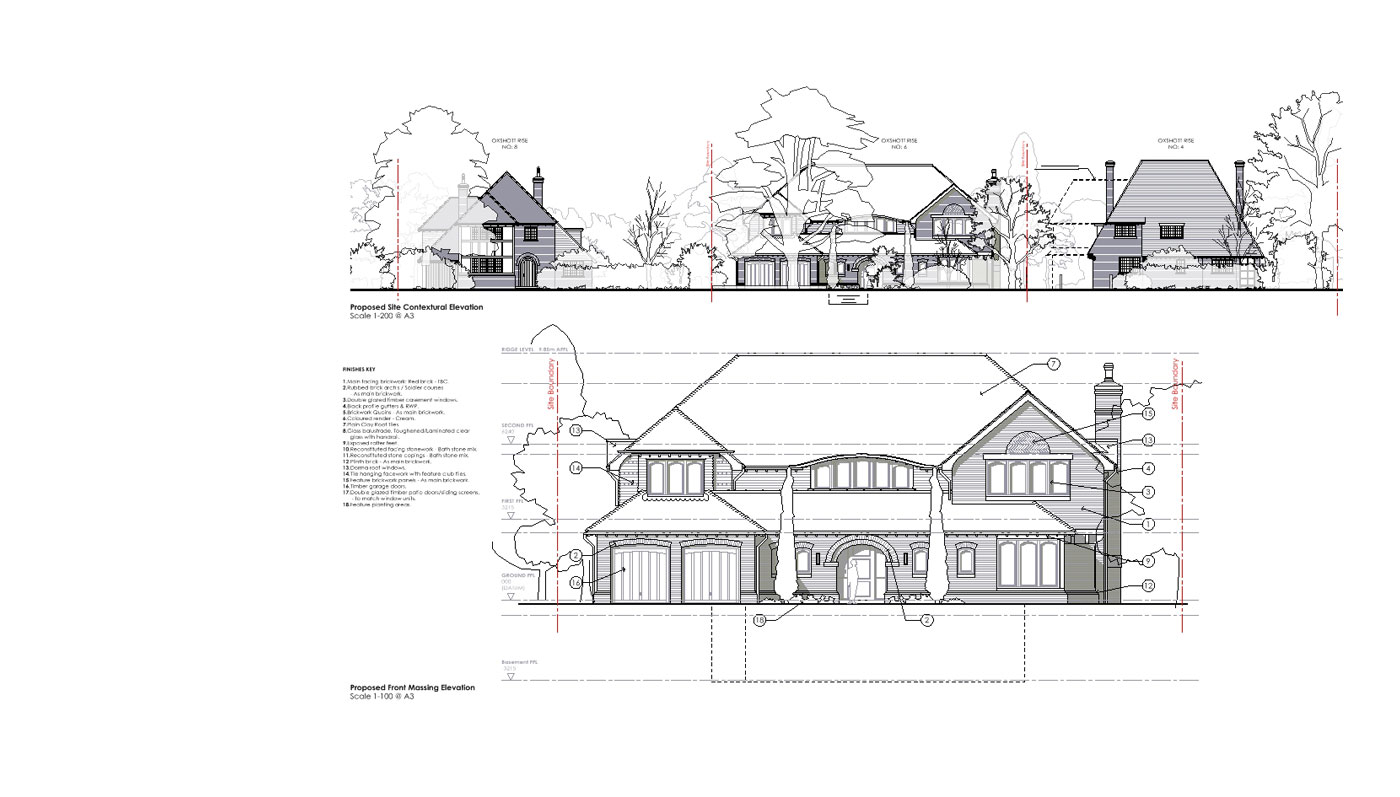
A large detached house on 4 levels completed May 2012, the scheme evolved to its present form (6,275 sq ft) with our appointment, RIBA Stage A-F for a local developer.
Oxshott Rise . . .
Home
Portfolio
Domestic Extensions
Grove Cottage
Glenridge Lodge
Stanley Crescent
Cider Mill Farm
Commercial
Gate Street Barn
Kennet Wharf
Odney
Residential
Kent House
Long Common House
Copsum Lane
Icklingham Road
Oxshott Rise
Brixton Road
Expertise
Contact